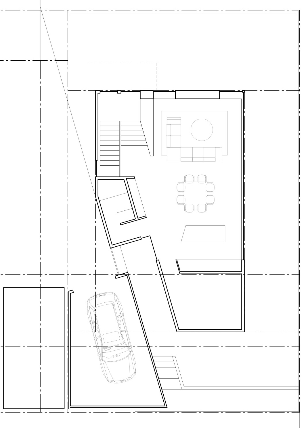
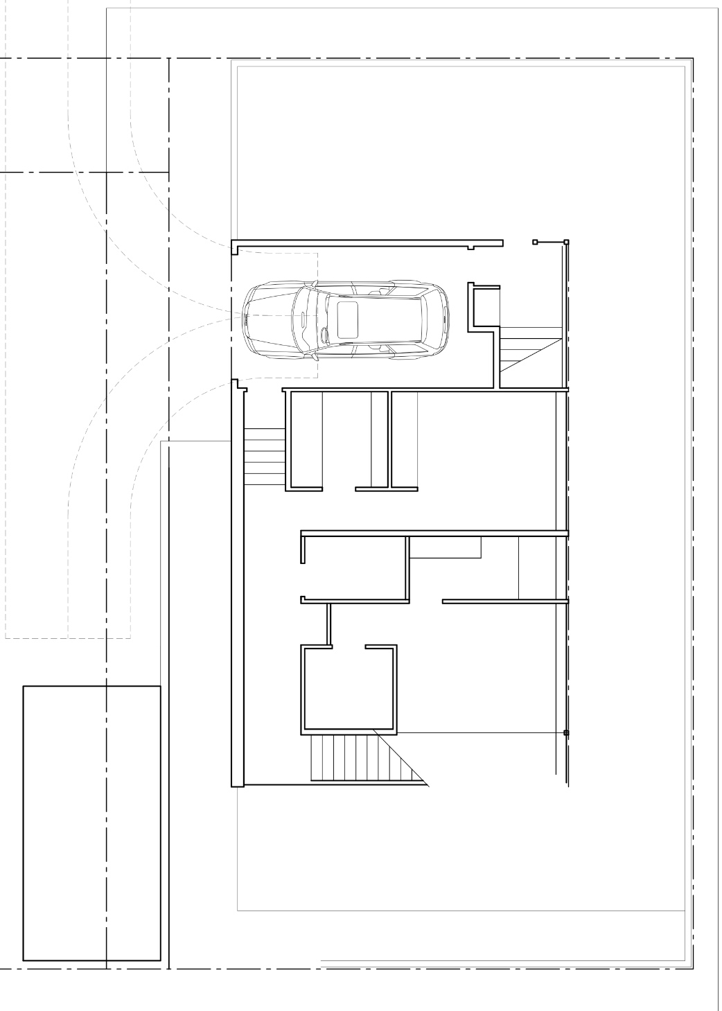
Possible floor plans
It’s been a fun few weeks looking at drawings by the two design firms I’ve engaged to work in parallel before I choose the right partner for my project. The prefab designer relocated the staircase in my SketchUp model so it wouldn’t cut across two of their prefab modules. While that allowed us to resize some rooms, for the most part the locations of the rooms were as I had originally drawn. The first diagram below shows the upper level floor plan for the modular home, followed by the ground level plan. (North is on the right side of the page.)


By design, most daily activities (sleeping, cooking, eating, working, etc.) would take place on the upper level. Much of the lower level is an outdoor covered patio open to the yard for hosting barbecues or playing with the dog. One thing I was concerned about is the length of the main living space on the second floor. Is that going to look like a tunnel, especially with the stairs taking up some of the width in the middle? The modular builder’s designer wasn’t willing to share the SketchUp for me to explore on my own.
The architect at work
Unlike the prefab designer who had prefab modules and my SketchUp model to work from, the architect started completely from scratch. The first set of options he presented pivoted around the location of the garage. In the plan shown directly below, the garage is in the back of the property. I would use the neighbor’s driveway, for which an easement was granted to my lot by the original owner who subdivided the land. Though this plan would exempt the garage from being counted within the glass box and setback requirements, thereby freeing up more living space within the main structure, it would take up space from the backyard. It would also make the driveway too long. I drive to work on most weekdays and wouldn’t want to back my car all the way out to the street.

In the second option shown below, because my garage would be perpendicular to the shared driveway, it would also allow me to back my car into the driveway first so I wouldn’t have to back into the street. However, because the shared driveway is the highest point of my lot (it slopes down about five feet to the east), in this plan the garage would take up too much space from the upper level living area. This is one thing the prefab designer’s layout didn’t consider, not to mention that a garage in the northwest corner of the home would result in backing up into a guy wire supporting a nearby utility pole!

Of the three floor plans prepared by the architect, I chose the one (pictured below) which put the garage on the lower level, within the main structure and at the front of the house. We would need to work with local authorities to ensure that there is enough room between the driveway and the guy wire supporting the utility pole.

The light well concept
After we settled on the location of the garage, the architect focused on the upper level floor plan, especially on the location of the main bedroom suite (including wardrobe and bath) relative to the main living space and the placement of a stair leading up to the roof (for a possible roof deck). In the first option below, the master suite is set along the west side, with the outdoor staircase to the roof deck along the south wall. Above the living room, kitchen and bath (denoted by the dashed lines) would be “light boxes” with clerestory windows to let lots of natural light in.

The architect prepared the following renderings of this floor plan.
In the second option below, the master suite would be placed along the south side, separated from the main living space by a stair leading up to the roof deck, which would be open to the outdoors and enclosed in a glass “light well” that would bring lots of natural light in. This plan would require curtains or blinds to give the master suite privacy when guests are around.

Renderings for the light well concept are shown below.
There’s so much to consider here, including whether I really want a roof deck, which in turn depends on whether there’s a much better view of snow-capped mountains, the city’s largest lake and a skyline to the east than would be available from the main living space on the second floor. Nonetheless, the idea of bringing natural light into the home through a light well is just stunning.
Mind blown.