The site survey

My lot was surveyed this week. In hindsight, I should have hired the surveyor immediately after the lot purchased closed. It turns out surveyors work in batches according to location so I ended up waiting a few weeks before someone was coming to my neighborhood. Thankfully there’s an older survey that the two design firms I’m working with have used in the meantime.

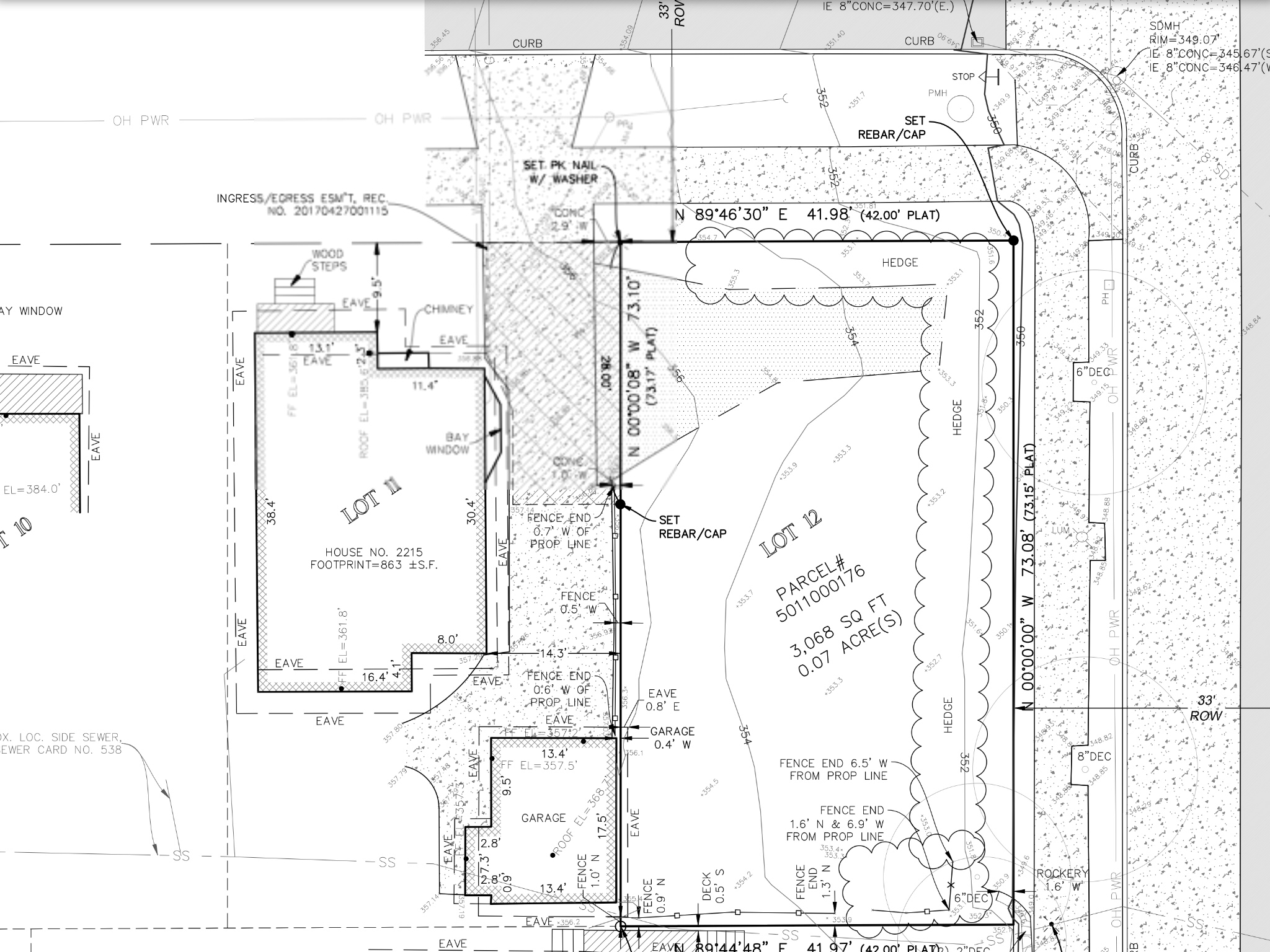
Besides locating and marking the corners of the lot to determine the property’s boundaries, the surveyors charted the topography of the land; located curbs, sidewalks, retaining walls and visible utilities; and identified any encroachments such as fences and overhanging trees in adjoining lots. They also measured the depth of the neighbors’ front yards to determine how big my front yard needs to be (more on this below), as well as the heights of surrounding homes, walls and utility poles.

The image below shows my lot (#12) on the new survey.

The glass box: height & setback restrictions

Using the old survey, the designers drew the “glass box” in which my new home would need to fit to satisfy municipal requirements. The land use code applying to my corner lot limits the size and location of a new home within the lot as follows:

  • The front yard must be 15 feet deep, which is the average of the neighbor’s front yard west of the lot and the standard setback of 20 feet since it’s a corner lot bounded by a street to the east
  • The side yard next to the street to the east must be 10 feet wide
  • The side yard between my home and the neighbor to the west must be 5 feet wide
  • The backyard must be 15 feet deep

Based on these setback requirements, my new home’s footprint could cover about 1100 square feet of my 3000-square foot lot. The 18-foot height restriction would allow for a second floor, possibly requiring some digging to lower the ground floor. In all, a two-story home on the lot could be up to 2200 square feet in floor area.

For the prefab builder I’m working with to design a home, the setback requirements meant scaling back the length and width of the prefab modules I had selected on their website. For the architect I’ve hired for a preliminary design, there were several placement options to consider. One option was to orient the home so that the front yard was facing east instead of north. By averaging the depth of the front yard of the neighbor to the south and the standard front yard setback of 20 feet according to the municipal code, this option would have resulted in a bigger footprint for my home if the neighbor to the south has a shallow front yard. However, the new survey showed that the front yard of the neighbor to the south is set 20 feet back from the street, so this would have resulted in a long and narrow building with less floor area than a north-facing structure. Though the option was quickly discarded, the architect showed me how a range of possibilities could arise just from how the home is oriented within the lot.